gallery
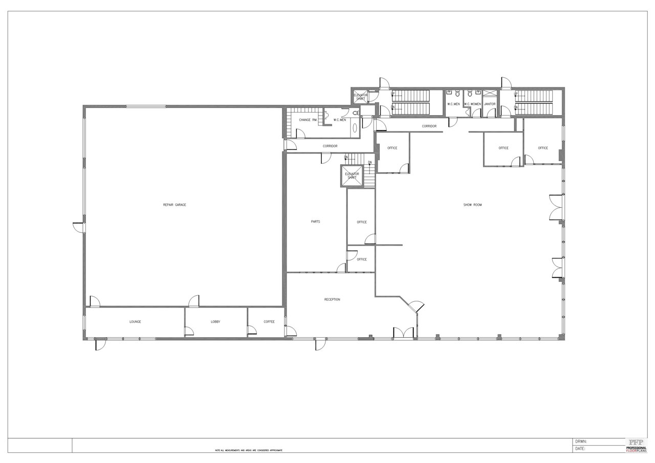
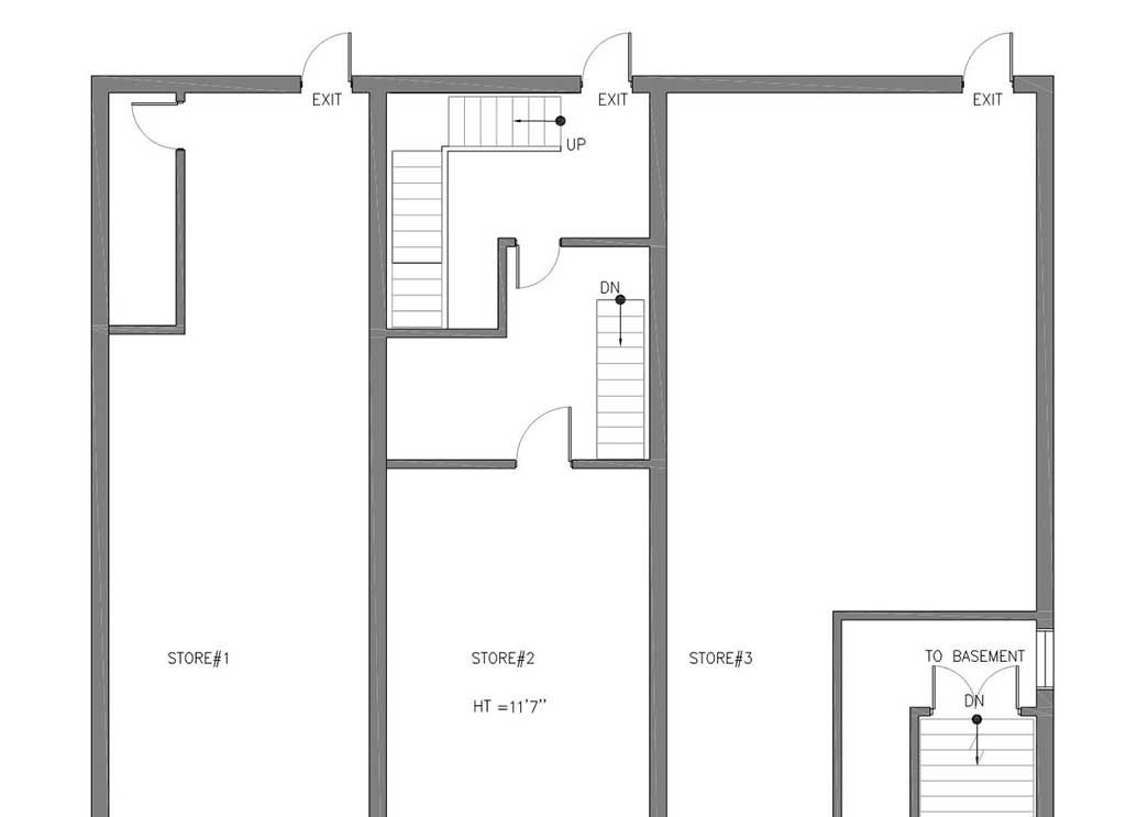
Plazas and commercial buildings
PFP provided floor plans and area calculations for a number of plaza and commercial multi-purpose buildings for plaza owners, buyers, renovators and tenants.
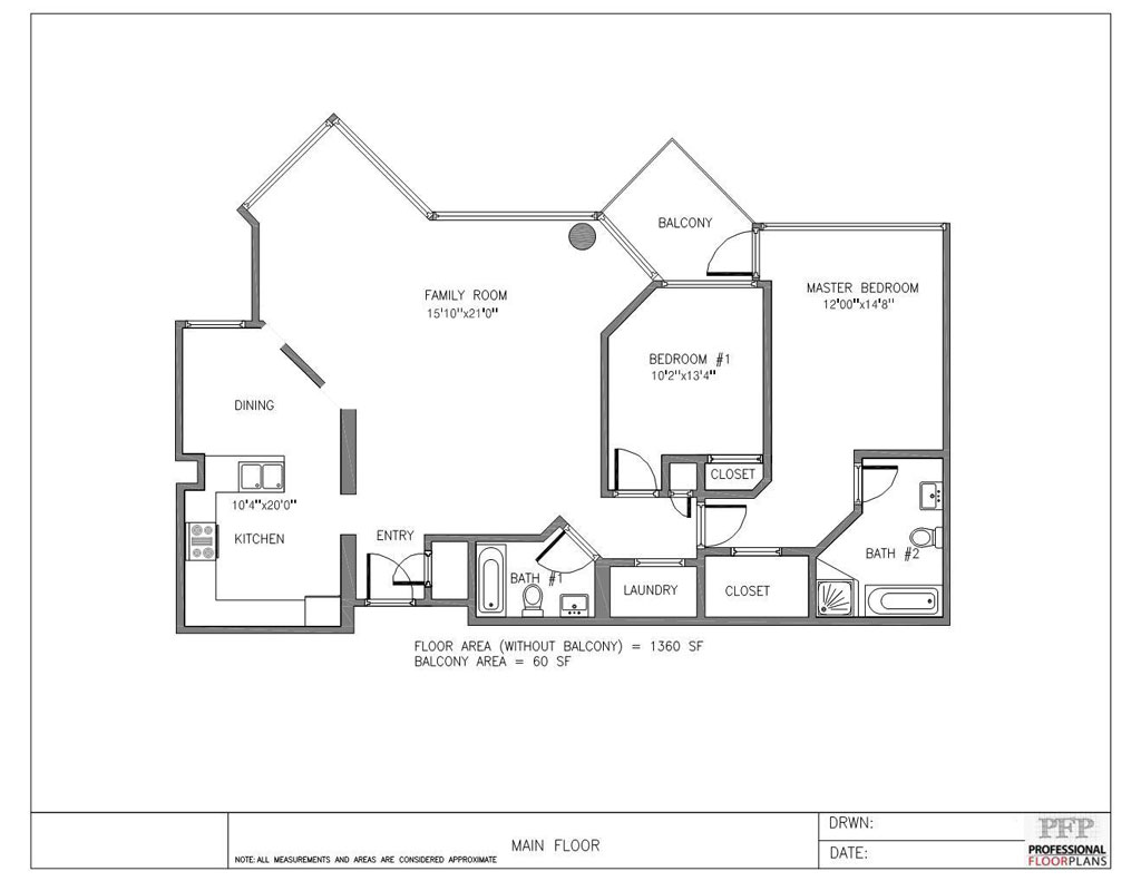
Multi story buildings
PFP worked a number of multi-purpose multi-story buildings (mixed commercial and residential) to support developers and contractors in their investments.
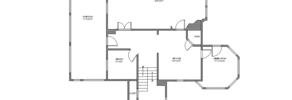
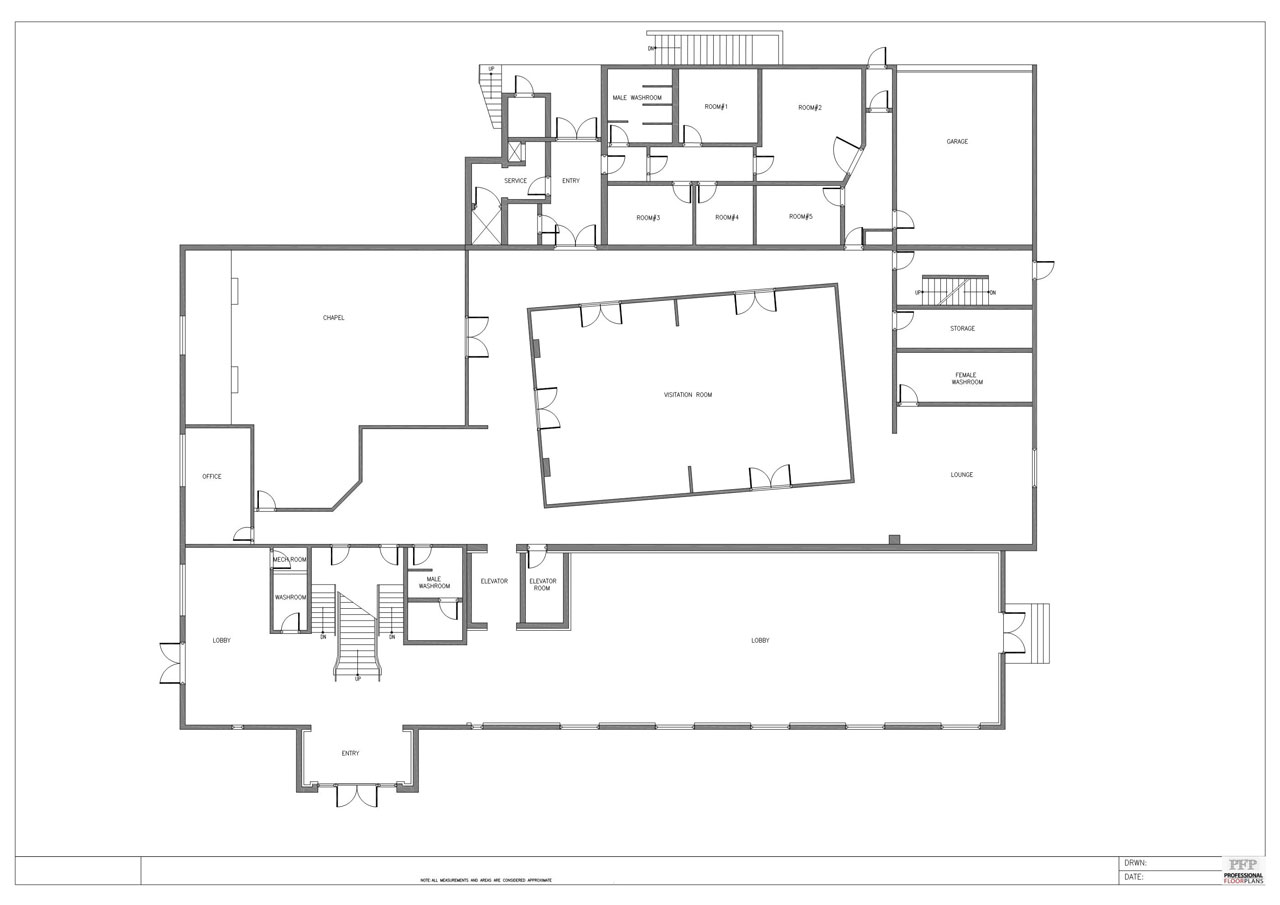
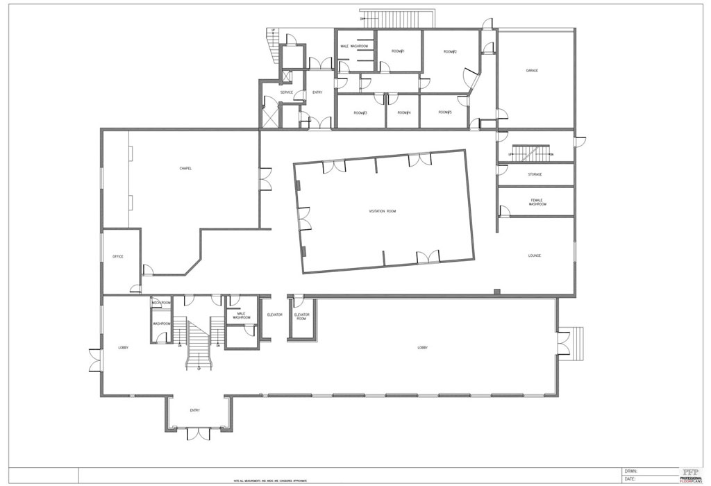
Cultural and Entertainment Centers
PFP was pleased to see that floor plans, area calculations and cost estimates provided to developers helped in upgrading a number of cultural and entertainment centers and brought them to life again.
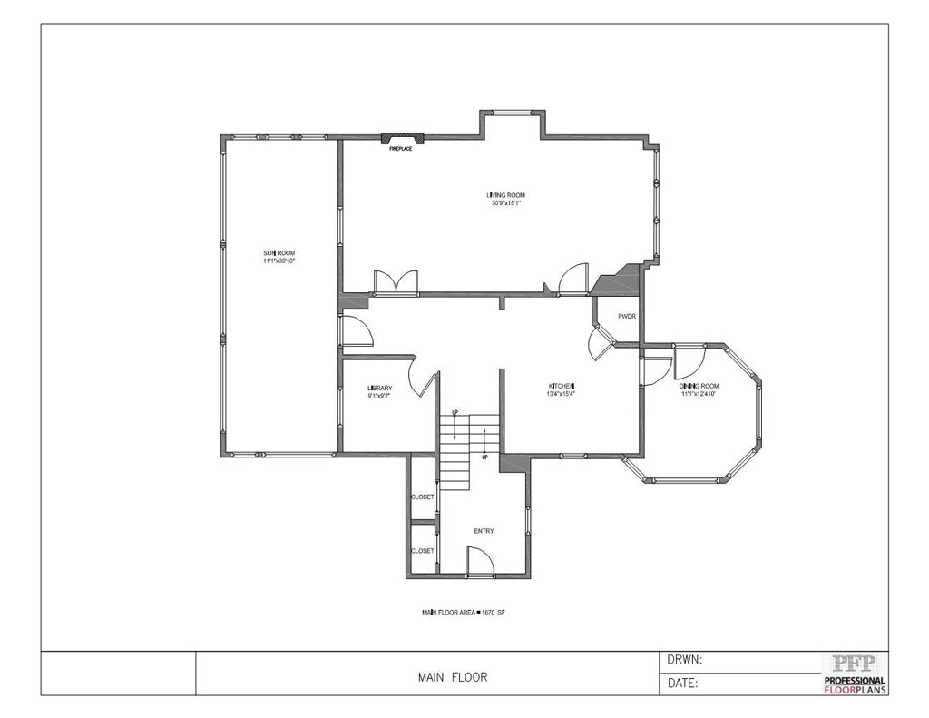
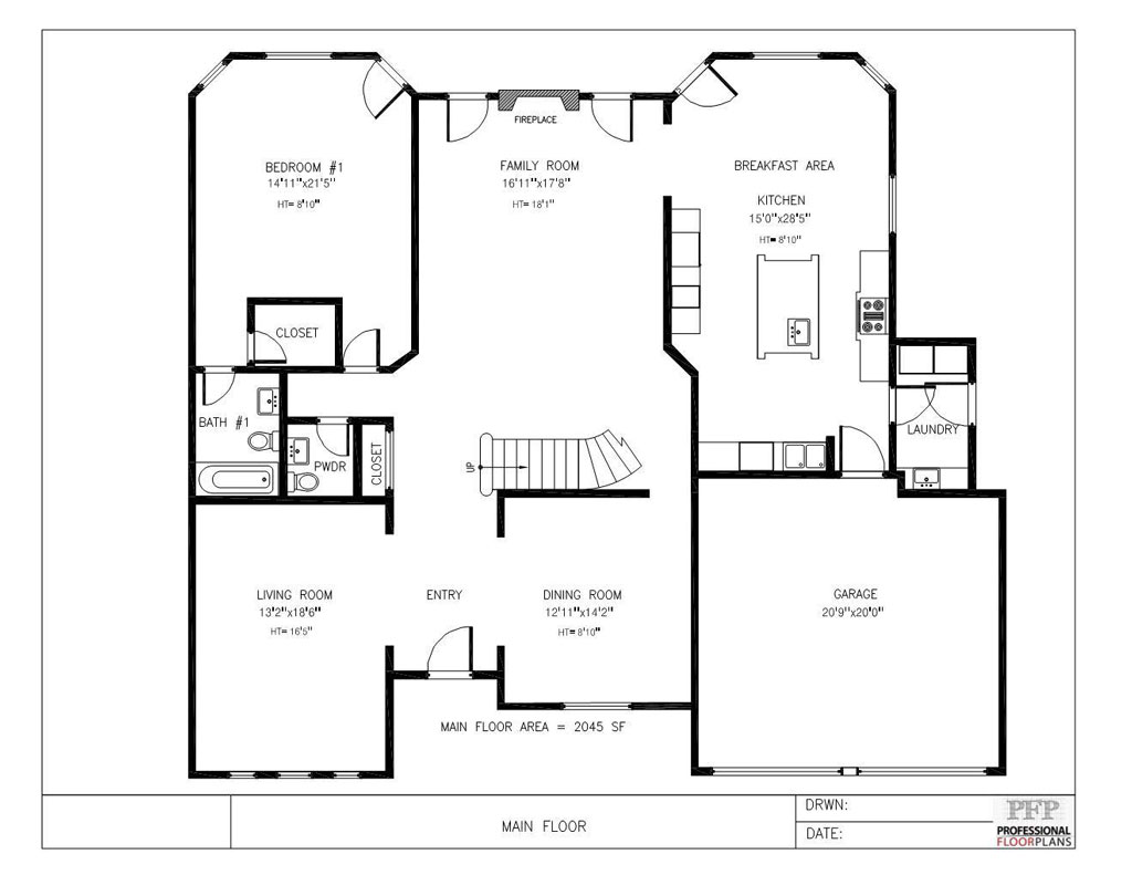
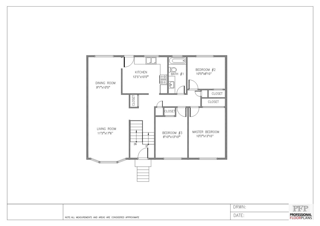
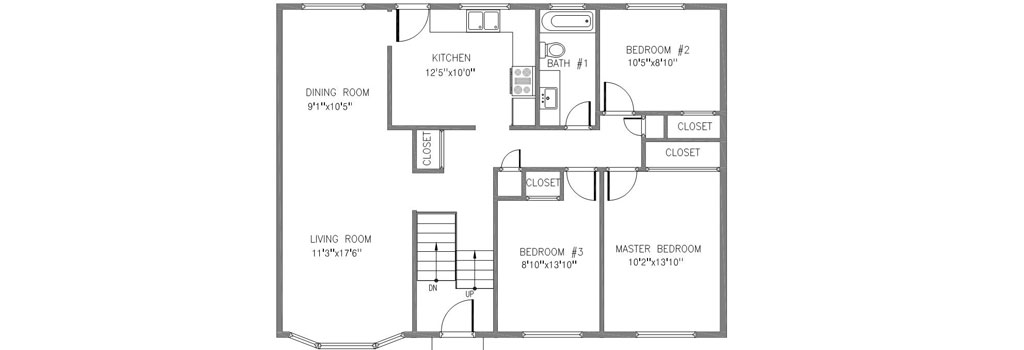
Residential units
PFP helped a number of real estate and home owners to specify the house area, estimate the quantities needed for renovation and upgrading and also have an advance view on what the house would look like after development.





